Tiksli geodezija be vėlavimų

Geodeziniai matavimai, toponuotraukos ir kadastriniai darbai visoje Lietuvoje

Apie mus

Esame dviejų brolių geodezinė įmonė, dirbanti visoje Lietuvoje.

Patys atliekame visus matavimo darbus, todėl klientai visada žino, kas dirba objekte ir kas atsakingas už rezultatą.

Dirbame su aktualiausia įranga.

Mums svarbu tikslumas, aiškus bendravimas ir ilgalaikis pasitikėjimas. Kiekvieną projektą vertiname individualiai ir siekiame aukščiausios darbų kokybės.

Mūsų paslaugos

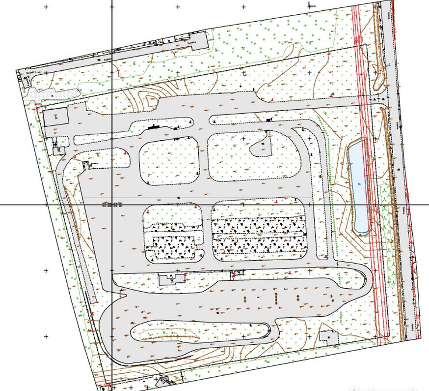
Topografinės nuotraukos

Reljefo, objektų ir sklypų matavimai bei planų sudarymas.

nuo - € · 3–5 d.

Kontrolinės geodezinės nuotraukos

Statybų atitikimo projektui tikrinimas ir fiksavimas.

nuo - € · 5–10 d.

Nužymėjimo darbai

Ašių, ribų ir konstrukcijų nužymėjimas statybvietėje.

- €/val. arba nuo - €/d.

Kartografija

Žemėlapių sudarymas, duomenų apdorojimas ir analizė.

- €/val. arba nuo - €/d.

Mūsų atlikti darbai

Gaukite pasiūlymą

Dirbame be tarpininkų

Maža komanda, didelis dėmesys klientui

Aiškios kainos ir terminai

Norite įvertinti paslaugų kainą?

Susisiekite žemiau pateiktais kontaktais arba užpildykite užklausos formą

Kontaktai

Darbo laikas

I-V: 08:00 - 17:00
VI: 08:00 - 12:00
VII: Nedirbame